利達WK-BDII10消防電源接線安裝技術
介紹:
WK-BDII 10 消防電源具有主備電信號輸出功能,可為 LD307 家用火災報警控制器或可燃氣體探測器供電。
功能:
★ 壁掛式電源。
★ 具有主備電信號輸出功能,使用主備電信號時需對電源內模塊編碼,占兩個連續(xù)的二總線地址,并接入二總線上傳電源狀態(tài)。
★ 具備主備電切換功能。
主要技術指標:

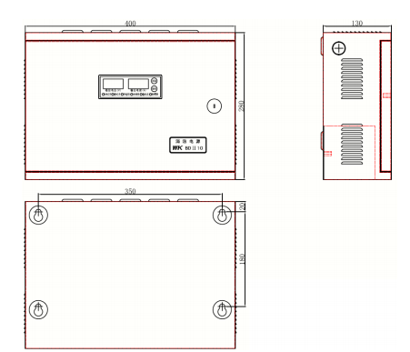
外形結構示意圖: (單位:mm)

利達WK-BDII10消防電源接線安裝技術
介紹:
WK-BDII 10 消防電源具有主備電信號輸出功能,可為 LD307 家用火災報警控制器或可燃氣體探測器供電。
功能:
★ 壁掛式電源。
★ 具有主備電信號輸出功能,使用主備電信號時需對電源內模塊編碼,占兩個連續(xù)的二總線地址,并接入二總線上傳電源狀態(tài)。
★ 具備主備電切換功能。
主要技術指標:

外形結構示意圖: (單位:mm)


蘇公網(wǎng)安備32058102002152號